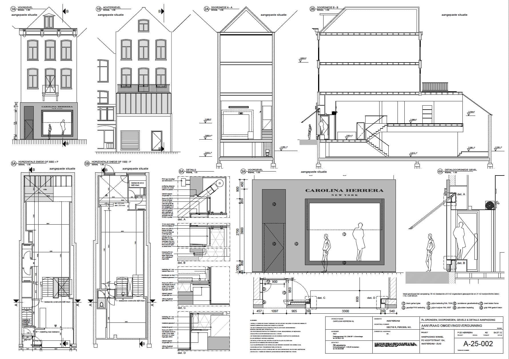
Amsterdam. 250 m2 Shop & facade refurbishment in high-end shopping street in Amsterdam. Combined entry zone to maximise shop front area & focus of display. Void was introduced to provide daylight yet shop floor area remained the same. Collaboration with interior architect of Carolina Herrera. Design, planning approval & execution drawings.
